最終公開のお知らせ🏠✨

これまで多くの方にご見学いただいてきたこちらの住まい。
いよいよ 最終公開 となりました。
📅 2月13日(木)~15日(土)
この3日間が、実際にご覧いただけるラストチャンスです。
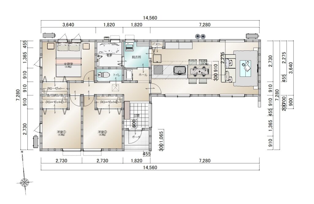
今回の住まいは、
暮らしやすさをとことん考えた間取りが魅力の一棟。

🛋 LDKはゆったり配置
キッチンからリビング・ダイニングを見渡せるので、
家族の気配を感じながら毎日の時間を過ごせます。
🚿 水まわり動線も◎
脱衣所・洗面・トイレがまとまり、
朝の身支度や帰宅後の動きもスムーズ。
🛏 個室+収納もしっかり確保
各洋室にはクローゼットを設け、
生活感を出しすぎない工夫もポイントです。
図面や写真だけでは伝わりきらない、
「広さの感覚」や「動線の良さ」、「空間の雰囲気」は
実際に立ってみてこそ分かるもの👀✨
この物件をご覧いただけるのは、
2/13~15の3日間で本当に最後 となります。
「気になっていたけど、まだ見ていない」
「もう一度しっかり確認したい」
そんな方は、ぜひこの機会にご覧ください😊
皆さまのご来場をお待ちしております🌿🏠