【御予約制】磐田市見付平屋モデルハウス販売中 ‐磐田店-
日程:完全ご予約制
時間:10:00~17:00
場所:磐田市見付4837-38
◆磐田市見付 完成物件◆
洗面と脱衣を分けて、暮らしを整える。収納上手な横長LDKの平屋。

| 所在地 | 磐田市見付4837-38 |
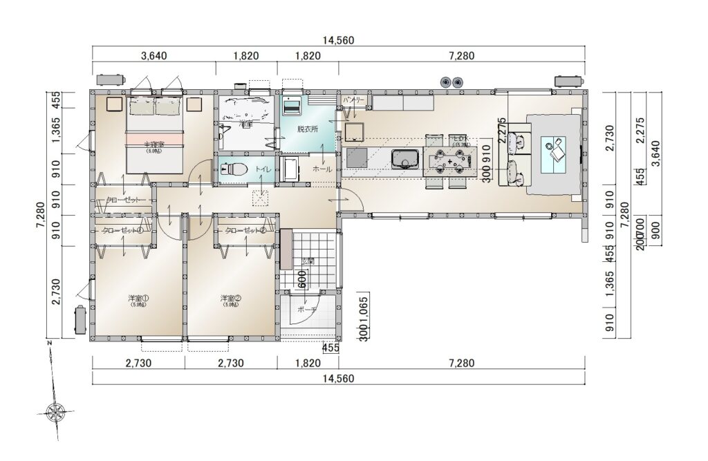
| 間取り | 3LDK |
| 販売価格 | 3,380万円 |
| 土地面積 | 180.89㎡(54.71坪) |
| 建物面積 | 77.01㎡(23.29坪) |

下がり天井で、キッチンとダイニングに自然な区切りを。
天井の高さを変えることで、壁をつくらずに空間を分け、落ち着いて過ごせるLDKに仕上げました。

家族が集まる、ひと続きの心地いいLDK
料理・食事・くつろぎが一体になる、平屋ならではの開放的なLDKです

玄関から直行、洗面動線
ただいま、すぐ洗面。毎日の手洗いが、無理なく習慣になる間取り

洗面と分けた脱衣室で、入浴も洗濯も気兼ねなく
洗面と脱衣室を分けることで、家族の入浴中も洗面が使いやすく、生活動線がスムーズです
お支払い例
月々支払:51,324円
■借入額:3,380万円
■頭金: 0円
■ボーナス時加算:100,000円/年2回
■返済期間:50年
■金利:0.775% の場合
物件の特徴
・暮らしやすい 3LDKの平屋住宅
・照明・エアコン・外構付きで、すぐに新生活スタート
・来客時も安心の TVモニター付きインターホン
・南向きで陽当たり良好、明るい住空間
・全居室収納付きで、衣類や荷物もすっきり👕
・駐車3台以上可能で、ご家族や来客時も安心🚙
周辺環境
小学校・・・磐田市磐田北小学校 徒歩11分(800m)
中学校・・・磐田市城山中学校 徒歩12分(900m)
スーパー・・・アピタ磐田店 徒歩10分(750m)
コンビニ・・・セブンイレブン磐田見付店 徒歩2分(400m)
銀行・・・静岡銀行磐田支店 徒歩12分(850m)
間取り
