【愛知県】西尾市・半田市【静岡県】浜松市・磐田市・富士市・藤枝市・掛川市のローコスト住宅・新築戸建てならニコニコ住宅

イベント情報
モデルハウス見学会
藤枝市 下青島モデル ~藤枝店~  ☆2026/3にOPENしました☆
▼物件詳細について

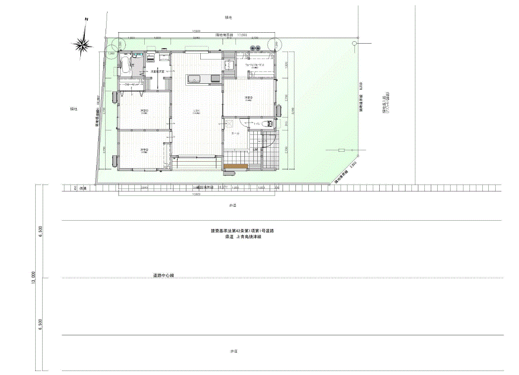
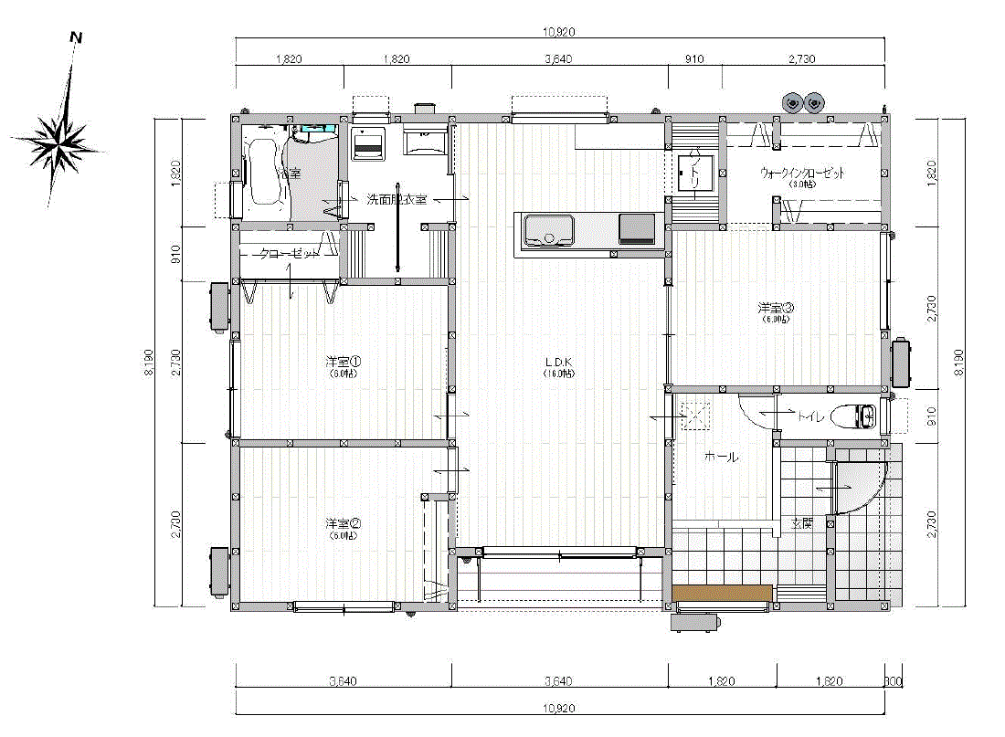
藤枝市下青島 新築一戸建て 3720万円

 

 

★藤枝市下青島にシンプルモダンな

平屋モデルハウスがOPENしました★

人気の 藤枝市立 青島小学区★

83.62㎡(25.3坪) 3LDK

スーパー、ドラッグストア、ホームセンターなどが

近くにある充実した住環境です!

 

★モデルハウス仕様★

 

スタイリッシュな外観☆

 

グレーを基調としたシックな雰囲気で

トータルコーディネートしたこだわりの平屋住宅!

 

6帖の洋室が3部屋に、広々とした3帖のウォークインクローゼット

が付いています🌸

 

リビングと繋がるウッドデッキもあり、

一体感のある空間となります🌟

 

キッチンにはパントリー、食器棚、食洗器が付いてます!

カーテン、エアコン、照明器具も完備です☆

 

★★★「グッドリビングの分譲住宅」でもご紹介しております★★★

 

是非お気軽にお問い合わせください。

グッドリビング㈱藤枝店

☎ 054-660-8800

    お名前 (必須)

    住所 (必須)

    電話番号 (必須)

    メールアドレス (必須)

    ニコニコ住宅を知ったきっかけ

    ネット検索AIで調べてチラシインスタグラムLINEYoutubeSUUMOドコタテイエタテアットホームCMを見て看板モデルハウスを見て知人からの紹介その他

    お問合わせ内容 (必須)

     確認ページはございません。内容をご確認の上チェックを入れてください

    モデルハウスの一覧を見る
    イベント情報 磐田店ブログ 藤枝店ブログ 富士店ブログ 掛川店ブログ 半田店ブログ
    841万からの家づくり グッドリビング
    予約特典あり!イベント予約