\磐田市千手堂モデルハウス2026年4月完成予定/

来年4月完成予定の新モデルハウスを、限定1棟・オーナー様募集いたします。
暮らしやすさとデザイン性を両立した住まいを、モデルハウス特別仕様でご提供。
完成前からお問い合わせが増える人気の住まいのため、ご検討はお早めにおすすめします。
■ 物件概要
販売価格:2980万円(税込)
土地面積:134.53㎡(40.69坪)
建物面積:92.73㎡(28.05坪)
完成予定:2026年4月
■月々支払例
月々55,578円 ボーナス月加算100,000円(年2回)
頭金0円 借り入れ額2980万円
年利0.775% 変動金利/40年返済


■ 建物の特徴(おすすめポイント)
木目天井が映えるLDK
天井に広がる木の質感が、空間全体をやさしく包み込む心地よいLDK。
キッチンから見渡せる一体型空間
料理をしながら家族の様子が見える、開放感のあるレイアウト。
ペンダント照明が映えるダイニング
毎日の食事も、来客時も絵になるデザイン性の高い空間。
落ち着きのある主寝室
アクセントクロスと横長窓で、ホテルライクなくつろぎを演出。
シンプルで飽きのこない外観デザイン
グレーを基調に木目をアクセントにした、長く愛せる外観。


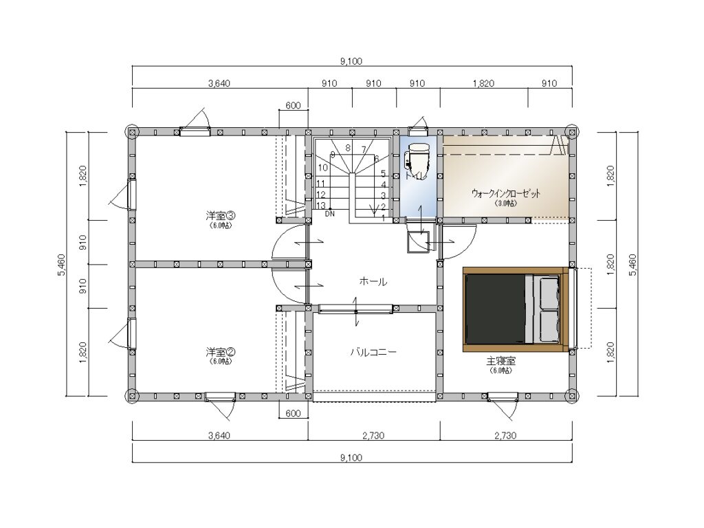
■ 間取りの魅力
生活動線を考えた無駄のない間取り
家具配置がしやすいLDK設計
プライベートと共有空間を程よく分けたレイアウト
採光・通風を考慮した窓配置
※実際の暮らしをイメージしやすいモデルハウス仕様です。
■ 周辺環境
・磐田市立磐田南小学校まで240m・・・徒歩3分
・磐田市立南部中学校まで650m・・・徒歩9分
・コスモス上岡田店まで1000m・・・徒歩14分
・ピアゴ上岡田店まで1300m・・・徒歩17分
・セブンイレブンまで550m・・・徒歩8分
■ モデルハウスだからこその価値
この住まいは、
「見せるため」ではなく「実際に住みやすいこと」を追求したモデルハウスです。
そのため毎回、
👉 完成前にご成約となるケースが多いのが特徴。
「この間取り、この雰囲気が好き」
そう感じていただけた方には、ぜひお早めのご検討をおすすめします。
■ お問い合わせ
完成前でも
詳細資料のご案内
資金計画のご相談
承っております。
限定1棟のモデルハウスオーナー募集となりますので、
少しでも気になった方は、お気軽にお問い合わせください。